Criar linhas conforme a NBR 16861 no Revit permite adicionar estilos únicos de linhas para atender as diferentes necessidades de documentação do seu projeto. Aprenda agora!
A representação gráfica de um projeto se dá através de uma série de diferentes tipos de linhas, onde além de da linha contínua temos padrões tracejados, traço-ponto, pontilhada etc., que são aplicadas em diferentes contextos do nosso projeto.
E obviamente temos uma norma técnica para isso, no caso a NBR 16861 – Desenho técnico – Requisitos para representação de linhas e escrita.
Tipos de linha conforme NBR 16861
Na NBR 16861 – Desenho técnico – Requisitos para representação de linhas e escrita, temos uma tabela com os tipos básicos de linhas.

A NBR 16861 permitem três espessuras de linha em cada desenho. No entanto, isso pode variar em função do tipo de disciplina de desenho.
Por exemplo, desenho mecânicos exigem apenas duas espessuras de linha (fina e grossa), desenhos de construção podem ter até quatro espessuras: fina, média, grossa e “símbolos gráficos” (algo entre fina e grossa).
Ok, mas qual a espessura exata dessas linhas?
Segundo NBR 16861 as linhas seguem a proporção entre as espessuras de 1:√2 (≈ 1:1,4), que é a mesma utilizada na série ISO-A dos formatos de folha de desenho. A espessura das linhas estreitas, largas e extralargas (fina, média e grossa) deve ter a relação de 1:2:4.
As espessuras de linha aceitáveis (em mm) que podem ser usadas em um desenho são as seguintes:
0,18 | 0,25 | 0,35 | 0,5 | 0,7 | 1,0 | 1,4 | 2,0
Para facilitar sua vida vou deixar aqui a tabela que a NBR 16861 apresenta os grupos de linhas que você pode utilizar em seus projetos.

Considere que sua espessura padrão de linha seja o grupo 0,35. Isso quer dizer que quando você precisar representar algo com uma menor ênfase no desenho, você vai usar a espessura de 0,18mm, mas se precisar destacar algo no desenho, vai usar 0,70mm. Para símbolos gráficos do desenho, vai usar 0,25mm.
Entendidas as espessuras temos agora que conferir o espaçamento das linhas não-contínuas, onde também temos uma tabela para isso.

Mas o que é esse “d“?
O comprimento “d“ corresponde a quantas “espessuras” você está utilizando. Na tabela anterior vimos que devemos trabalhar com grupos de espessuras, desta forma devemos selecionar um grupo e usar a espessura Larga como o valor de “d“.
Por exemplo, no anexo da norma NBR 16861 temos no campo anexo alguns exemplos de padrões de linhas, vou usar a traço ponto como exemplo.

Eu pintei de vermelho os traços e pontos que correspondem a linha. Observe que um traço tem 24d de comprimento, o espaço tem 3d de comprimento e o ponto tem 1d de comprimento.
Se usarmos o grupo de linhas da tabela 4 o valor será d=0,25mm, portanto basta multiplicar os valores do exemplo por 0,25mm, onde temos:
- Traço: 24d * 0,25mm = 6mm
- Espaço: 24d * 0,25 = 0,75mm
- Ponto: 1d * 0,25 = 0,25mm

Obviamente que não vamos nos preocupar em medir o ponto, mas acho que aqui deu para entender o raciocínio. Acredito que a dúvida é como que isso funciona dentro do Revit?
Trabalhando com linhas no Revit
No Revit temos um conjunto de linhas que são utilizadas para representar graficamente todos os elementos do seu projeto, para acessar essa lista você deve ir até a aba Gerenciar e no painel Configurações clicar em Configurações adicionais.

Em Configurações adicionais selecione a opção Padrões de linha.

Na janela Padrões de linha temos uma lista com todos os tipos de linhas disponíveis para o Template atual.

Como assim para o Template atual?
No meu caso, estou usando o template de Arquitetura, aquele que vem no Revit. Mas, por exemplo, ao usar o template Metric Multi-Discipline (no Revit em Inglês), a lista de padrões de linha é bem maior (e ainda tem barra de rolagem com mais tipos!).

Mas não se preocupe, você pode criar novos estilos de linha para usar em seus projeto, mas antes de prosseguir temos um detalhe importante para conferir: como é o comportamento das linhas em função da escala utilizada na vista?
Para fazermos um teste, vou selecionar o padrão Projeção e clicar na opção Editar.

Na janela Propriedades dos padrões da linha temos os valores do padrão Tracejada e Espaço com os seus respectivos valores.

Certo, mas e se eu mudar a escala do projeto? Altera o valor?
Independente da escala que você escolher, o padrão de espaçamento das linhas (quando impresso) sempre será o mesmo.
Como assim?
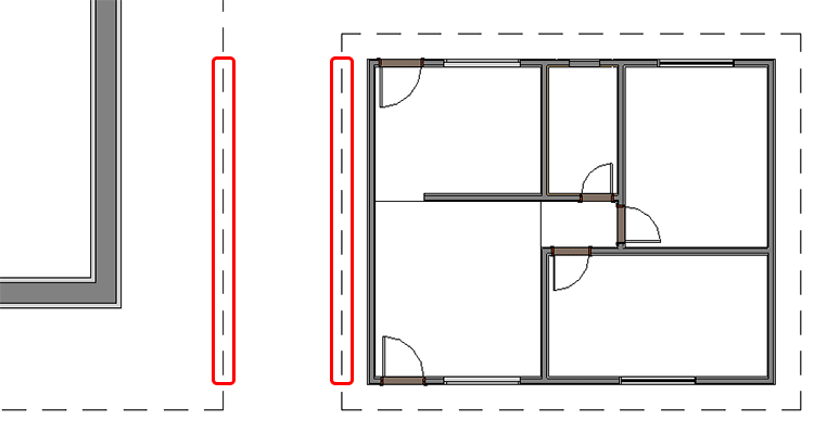
No exemplo abaixo, temos a mesma planta em duas escalas, 1:50 e 1:200. Observe que em uma vista em planta temos a impressão que nada foi alterado, com exceção do espaçamento da linha de projeção que utilizei para identificar a projeção do telhado.

Ao inserir as duas vistas em uma folha para a impressão, o tamanho de ambas é bem diferente, afinal a primeira foi reduzida apenas 50 vezes enquanto a segunda foi reduzida 200 vezes.

Porém, observe que o padrão de espaçamento das linhas de projeção é idêntico!

Isso quer dizer que o valor que a janela Propriedades dos padrões da linha exibe corresponde ao comprimento e espaçamento da linha quando o seu projeto for impresso, garantindo a padronização das linhas do seu projeto.
Entendido como funcionam os valores de comprimento e espaçamento de uma linha dentro do Revit, vamos criar uma linha personalizada.
Criar tipo de linha personalizada no Revit
Para criar um tipo de linha personalizada no Revit, precisamos ir até a aba Gerenciar e no painel Configurações, clicar em Configurações adicionais.

Na lista de opções, selecione Padrões de linha.

Na janela Padrões de linha, você pode clicar no botão Novo.

Na janela Propriedades dos padrões de linha, temos uma orientação logo no início sobre como criar uma linha personalizada.

O que percebemos aqui é que não é possível criar linhas muito complexas, de forma que os recursos disponíveis para a criação da linha são Traços, pontos e espaços. Porém estas opções são mais do que suficientes para criarmos os padrões básicos presentes na NBR 16861.
Como exemplo, vou resgatar os valores que identificamos para a linha traço-ponto.

O primeiro passo será colocarmos um nome, vou chamar de Traço-ponto NBR-16861.

Em seguida precisamos identificar o padrão que irá se repetir por toda a extensão da linha, onde cada linha da tabela controla um segmento. Se adotarmos os valores identificados para a linha tracejada da NBR 16861 o resultado será como na imagem abaixo:

Cada uma das linhas da tabela cuida de uma informação diferente, onde temos o Traço (6mm), o espaço (0.75mm), o ponto e por fim, outro espaço (0.75mm). Este padrão se repetirá por toda a extensão da linha. Clicando em Ok já podemos ver nossa nova linha disponível.

Certo, como podemos testar esta linha?
Vou inserir um corte no desenho que mostrei anteriormente, para configurarmos a linha de centro no símbolo de corte. Observe que a configuração padrão é uma linha contínua.

Para alterar o padrão de linha utilizado para o corte vamos até a aba Gerenciar e em Configurações clique em Estilos de objeto.

Na janela Estilos de objeto vamos até a aba Objetos de anotação e na coluna Categoria localize Linha de corte. Observe que na coluna Padrão de linha está indicando o estilo sólido.

Altere o valor para Traço-ponto NBR-16861 e clique em Ok ara finalizar.

Observe que já é possível visualizar o padrão Traço-ponto NBR-16861 aplicado no símbolo de corte.

Agora ao fazer um comparativo na folha de impressão, usando as vistas em escalas diferentes (1:50 e 1:200) percebemos que o padrão de espaçamento da linha é idêntico para ambas as linhas.

Logo abaixo uma visão de perto de ambos, perceba como são identicos.

Um detalhe interessante é comparar a Traço-ponto padrão do Revit com a Traço-ponto NBR-16861 que criamos.

Note como o padrão nativo do Revit é muito mais espaçado. Agora vou usar uma imagem do padrão traço-ponto extraído diretamente da NBR 16861.

Observe como o padrão que criamos no Revit está muito próximo ao que a norma exige para linhas traço-ponto. Com isso percebemos que podemos adequar a representação gráfica das linhas do nosso projeto de forma muito fiel aos padrões normativos brasileiros.
Conclusão
Criar linhas conforme a NBR 16861 no Revit é um processo muito simples e rápido, permitindo que seu projeto atenda as orientações das normas técnicas brasileiras.
Apoie o QualifiCAD!
Se este conteúdo foi útil para você, considere apoiar o projeto!
Toda contribuição ajuda a manter o site gratuito, sem anúncios, e a levar mais conhecimento a todos.
Escaneie o QR Code abaixo ou Envie um Pix para apoiar o QualifiCAD!
📲 Siga o QualifiCAD nas redes sociais e acompanhe nossas atualizações:
💬 Deixe seu comentário abaixo e participe da conversa! Sua opinião é importante!!
Explicação didática e simples de entender!
Muito obrigada.