Escada com degraus em leque utiliza degraus fazendo a curva da escada ao invés de um patamar, mas como fazer isso no Revit? Aprenda agora!
Escadas corretamente dimensionadas sempre foram um desafio para qualquer profissional, principalmente quando temos problemas de espaço disponível para a sua construção.
Já fiz alguns artigos aqui no site explicando como trabalhar com escadas no Revit, recomendo que dê uma conferida neles antes de prosseguir com a leitura:
Os degraus presentes em uma escada precisam ser dimensionados de forma que não sofram alterações de altura (espelho) e profundidade (piso/pisada) em toda a sua extensão, porém isso pode se mostrar um verdadeiro desafio em alguma situações.
Quando uma escada tem um formato em “L” ou “U” recorremos ao uso de um patamar, que nada mais é do que um degrau com maior comprimento que funciona tanto como área de descanso como área de “transição” para sair de um lance de degraus para outro.
Porém, para otimizar o espaço, é comum o patamar ser substituído por degraus em “leque”, que nada mais são do que degraus com um formato triangular, de forma que o piso/pisada do degrau possui uma variação de profundidade.
Não é que você não possa utilizar degraus em leque, o problema é que quando mal dimensionados, são propícios para causarem acidentes graves, desta forma é necessário que o seu dimensionamento seja muito bem projeto.
Para resolver este problema vamos aprender o método correto para o dimensionamento de degraus em leque e, não menos importante, fazer o que todo profissional deve fazer em momento de dúvida, consultar as normas técnicas.
Escada degrau em leque x Normas técnicas
Quando falamos de normas técnicas relacionadas a escadas, as primeiras que devem ser consultadas são:
- NBR 9050:2020 – Acessibilidade a edificações, mobiliário, espaços e equipamentos urbanos.
- NBR 9077:2001 – Saídas de emergência em edifícios.
Em ambas as normas temos orientações quanto ao uso de escadas atendendo a fatores de segurança e acessibilidade. Na NBR 9050, no item 6.8.6. temos uma dimensão “mínima” da parte mais estreita do degrau.

Já na NBR 9050, temos nos itens 4.7.8 e 4.7.9 também temos a mesma orientação quanto ao dimensionamento dos degraus:

Um detalhe “curioso” é que o termo “degrau em leque” também é identificado como “degrau ingrauxido“.
Como é que é??
Bom, pelo menos é que as normas NBR usam, tentei identificar a origem dessa palavra mas não encontrei em nenhum dicionário, ou seja, a expressão aparece exclusivamente nas normas NBR, mais especificamente na NBR 9077.

Não menos importante ainda temos a fórmula de Blondel, que serve como base para o cálculo de dimensionamento dos degraus, que já expliquei em detalhes no artigo disponível no link abaixo:
ESCADA x FÓRMULA DE BLONDEL x ABNT
Mas voltando ao que interessa é que ambas as normas informam que temos um dimensionamento mínimo onde a parte mais estreita do degrau precisa ser ≥15cm (maior ou igual a 15 centímetros).
Mas como eu faço para calcular corretamente o tamanho do degrau?
Para o correto dimensionamento dos degraus em leque (ingrauxidos) precisamos fazer um processo que chamamos de “balanceamento”, onde podemos recorrer a algumas técnicas que vou apresentar a seguir.
Escada degraus em leque – Balanceamento
O processo de balanceamento de degraus em leque não é complicado, mas demanda atenção para se obter o correto dimensionamento. Outro detalhe é que não existe uma única “técnica”, onde vou apresentar as mais conhecidas.
O primeiro ponto a ser observado no balanceamento de uma escada com degraus em leque é determinar uma distância de 55cm em relação a parte interna da escada, que corresponde à linha imaginária sobre a qual sobe ou desce uma pessoa que segura o corrimão.

Considerando que o piso/pisada de um degrau “reto” precisa ter entre 28 e 32cm, ou seja, não pode ser inferior a 28cm, essa “linha imaginária” estabelece à partir de que ponto um degrau pode ter sua profundidade com medida inferior a 28cm.
Este processo também ajuda a garantir a profundidade mínima de 15cm. Para exemplificar, redesenhei a escada que é exibida na NBR 9077, onde podemos conferir que na linha imaginária de 55cm todos os degraus tem uma profundidade superior a 28cm.

Observe que na borda da faixa vermelha (que corresponde a distância de 55cm), não temos nenhum degrau com menos de 28cm de profundidade. Já na parte interna, onde o degrau fica mais estreito, não temos nenhum degrau com menos de 15 de profundidade.
Isso é uma escada corretamente balanceada, o resultado que precisamos buscar ao dimensionar os degraus de uma escada.
Agora observe uma escada “convencional” na imagem abaixo, que esteticamente pode parecer bonita, mas não oferece a segurança adequada aos usuários.

Este é um tipo de escada completamente “desbalanceada”, onde temos degraus extremamente largos de um lado (que também é um problema), e do outro (área em vermelho) tão estreitos que não há espaço para “pisar”, oferecendo riscos de acidentes.
Certo, mas como eu faço esse balanceamento então?
Balanceamento de escada – Métodos
Existem diferentes métodos para se fazer o balanceamento dos degraus de uma escada, desta forma vou iniciar pelo que considero mais simples, o de “método de ponto único“, que servirá como base para entender os outros métodos.
Balanceamento por ponto único
O primeiro passo é definir o percurso da escada e a localização do patamar. Para isso vou criar uma escada com 1,20m de largura com o percurso em “L”. Observe que todos os degraus possuem 28cm.

Agora vamos traçar uma linha imaginária com 55cm, para identificar o ponto crítico da escada.

Na altura do patamar podemos ajustar a linha imaginária de forma que o percurso fique em arco, deixando o trecho curvo dentro do patamar.

Definida a linha imaginária de referência, precisamos definir quantos degraus serão utilizados para fazer o balanceamento. Neste exemplo, vou utilizar três degraus de cada lance da escada, desta forma precisamos criar uma linha de referência a partir do último degrau “reto” de cada lance.

Observe que identifiquei por cores o trecho da escada que será balanceado e o trecho que não sofrerá alterações. Agora podemos fazer o primeiro estudo de balanceamento.
Como assim “estudo”?
Lembre-se que temos algumas dimensões mínimas para serem atendidas, desta forma se algum degrau não tiver as dimensões necessárias será necessário ajustar o estudo, possivelmente adicionando novos degraus.
A partir do último degrau reto de cada lance da escada eu inseri uma linha tracejada. A partir da intersecção deste ponto vou criar uma linha que passe pela linha imaginária dos degraus, para garantir a profundidade de 28cm.

Observe que a linha se inicia no encontro da interseção das linhas do segmento reto da escada e passa exatamente no encontro da linha imaginária de 55cm. Este seria o nosso primeiro degrau “balanceado”.

Agora podemos fazer uma “conferência” das medidas, onde precisamos garantir duas medidas: a profundidade mínima de 28cm de profundidade na linha imaginária e a profundidade mínima de 15cm no trecho mais estreito.
No exemplo que fiz, ambas as medidas estão dentro do esperado, desta forma não será necessário revisar o balanceamento adicionando degraus.

Desta forma, podemos prosseguir e repetir o processo para os demais degraus.

Observe que deixei o segmento do patamar por último. Neste trecho podemos optar por dois ou três degraus. Vou fazer um teste com três e conferir as medidas para ver se atendem as exigências da norma.

Conferidas todas as medidas já temos nossa escada perfeitamente balanceada e atendendo aos requisitos das normas.

Sobre os métodos de balanceamento, este não é o único, porém ele é um dos mais simples para se aprender o conceito, uma vez que os outros métodos são variações deste. Vamos conhecer outras formas de se fazer o balanceamento de uma escada.
Balanceamento por dois pontos
Balanceamento por dois pontos é utilizado quando temos uma diferente quantidade de degraus utilizados no balanceamento. Por exemplo, ao utilizar 3 degraus de um lance da escada e 4 degraus de outro lance.

Porém, o Balanceamento por pois pontos pode ser construído de duas formas: por espelho no meio do patamar e por degrau no meio do patamar. Para não estender demais o artigo vou deixar uma imagem com as etapas de construção resumidas.
Balanceamento por pois pontos (Espelho no meio do patamar) etapas:

Balanceamento por pois pontos (Piso no meio do patamar) etapas:

Balanceamento por linhas principais
Balanceamento por linhas principais estabelece uma relação entre o segmento reto da escada e o espelho ou o piso do degrau central, de forma que temos dois métodos de construção: com piso no meio ou com espelho no meio. Vamos conhecer ambos os métodos.
Balanceamento por linhas principais (Espelho no meio do patamar) etapas:

Balanceamento por linhas principais (Degrau no meio do patamar) etapas:

Essas são algumas das técnicas para balanceamento de degraus de escada, possivelmente pode ser que você encontre técnicas diferentes, mas o principal aqui é conseguir balancear a escada de forma que o percurso seja seguro e atenda as especificações das normas técnicas.
Certo, mas e no Revit?
No Revit temos opções de escadas já balanceadas e podemos definir o nosso próprio balanceamento usando a opção de edição “por croqui”. Vamos conferir.
Escada com degraus em leque no Revit
No Revit, para criar uma escada com degraus em leque, precisamos nos atentar a alguns detalhes importantes. Lembre-se que a função de uma escada é um elemento de circulação vertical que conecta diferentes níveis de uma edificação utilizando degraus.
Desta forma o primeiro passo é determinar a altura dos níveis que serão conectados. Vou usar um exemplo simples onde os níveis terão uma diferença de nível de 3,00m.

Feito isso vamos acessar a ferramenta escada, indo até a aba Arquitetura e no painel Circulação clicamos em Escada.

Ao ativar a ferramenta escada somos direcionados para a aba Modificar | Criar escada. Aqui temos acesso as ferramentas que precisamos para construir nossa escada, mas primeiro vamos nos concentrar no painel Componentes.

O Revit oferece dois modelos de escadas com degraus em leque: Leque em forma de L e Leque em forma de U.

Ao escolher qualquer uma dessas opções não precisamos nos preocupar em fazer os segmentos da escada e definir o patamar (uma vez que ele não existe nessas opções), o Revit se encarrega de criar a escada cobrindo o percurso inteiro.

Mas e se eu precisar ajustar a escada?
Você pode fazer alguns ajustes manualmente através das alças de manipulação.

Lembre-se que ainda estamos no modo de edição, se quiser finalizar a escada precisamos ir até a aba Modificar | Criar escada e no painel Modo clicar no ícone para confirmar.

Com isso podemos dar uma conferida na vista 3D da nossa escada. Observe que os degraus já estão balanceados.

Ah é simples assim? Problema resolvido então!
Calma. Lembre-se que o Revit é um software onde duas configurações padrão atendem as normas Americanas/Europeias, de forma que você sempre deve desconfiar do resultado, por mais “convincente” que ele possa parecer.
Vamos começar pelo básico, quais o método de balanceamento de degraus que o Revit usa? Para descobrir isso precisamos entrar no modo de edição e selecionar o lance de degraus, para isso selecione a escada e na aba Modificar | Escadas clique em Editar escadas.

No modo de edição, seleciona o lance de degraus e na paleta Propriedades localize o campo Degraus em leque e a opção Estilo de degraus em leque.

Observe que temos duas opções de escolha: Equilibrado e Ponto único.

Você notou que gastei um bom tempo explicando as técnicas de balanceamento de degraus, desta forma ao chegar neste campo você não está completamente perdido, pois já sabe que existem diferentes métodos de balanceamento.
O método de Ponto único eu já expliquei, então você deve estar se perguntando o que seria esse método Equilibrado. Para explicar melhor vou traçar algumas linhas na escada em uma vista em planta para que seja possível entendê-lo.

Criando uma linha auxiliar a partir do primeiro degrau “reto”, ao traças linhas acompanhando a inclinação do degrau percebemos que temos um padrão de espaçamento de 0,57m. Eu conheço esta técnica como método de linhas principais.
Ao alterar o método para Ponto único, temos o seguinte resultado.

Qual o melhor método então?
Particularmente recomendo utilizar o que você achar mais simples, porém a verdadeira preocupação é atender as dimensões mínimas estipuladas pelas normas NBR 9077 e NBR 9050, que é justamente o problema que temos aqui.
Como assim?
A configuração padrão do Revit usa a fórmula de Blondel para que os degraus tenham 0,25 de profundidade, porém a norma NBR 9050 temos:

Aqui já percebemos que por mais “bonita” que a escada tenha ficado sabemos que a profundidade dos degraus não está corretamente dimensionada, então se quiser usar uma escada em leque no Revit precisamos fazer alguns ajustes que veremos a seguir.
Como configurar escada em leque no Revit
Vamos começar os ajustes do zero, onde o primeiro passo é ativar a ferramenta Escada indo até a aba Arquitetura, painel Circulação.

Ativada a ferramenta Escada, vá até a paleta Propriedades e clique em Editar tipo.

Antes de qualquer alteração, vamos suplicar a família clicando no botão Duplicar e escolher um nome. Vou chamar de ABNT para facilitar sua identificação.

Em seguida vamos para o campo Regras de cálculo e clique em Editar.

Na janela Regras de cálculo ative a opção Usar o calculador de escadas para cálculo de inclinação e preencha os valores como na imagem abaixo.

Se quiser entender melhor os porquê desses valores, recomendo que consulte o artigo que fiz sobre regras de cálculo para escadas, vou deixar o link logo abaixo:
ESCADA x FÓRMULA DE BLONDEL x ABNT
Clique em ok para retornar para a janela Propriedades de tipo. Aqui vamos ao campo Regras de cálculo e em Altura máxima do espelho altere o valor para 0,18m e Profundidade mínima do piso para 0,28m.

Isso resolve a questão do cálculo correto de altura e piso da escada, agora precisamos fazer outros ajustes, no caso no cálculo do balanceamento da escada. Para isso vamos inserir uma escada no projeto e entender o que precisamos fazer.
Selecione a escada e na aba Modificar | Escadas clique em Editar escadas.

No modo de edição selecione o lance de degraus e em Propriedades localize o campo Degraus em leque.

Observe que temos uma ampla lista de opções de configuração, que nada mais são do que “regras” para o cálculo de balanceamento dos degraus. Apesar de não ser necessário fazer ajustes complexos ou mesmo usar todas as opções, vou mostrar o que cada uma delas faz.
A primeira coisa a se observar é o campos Estilos de degrau em leque, que determina o método de cálculo de balanceamento da escada, onde ao escolher entre Equilibrado e por Ponto único temos alterações nas demais opções.

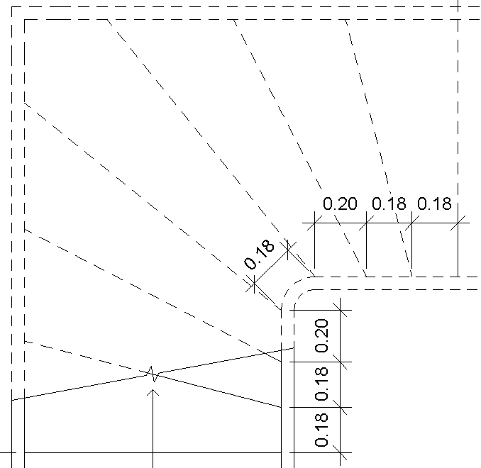
Para entender o que os demais campos vou usar uma imagem como referência para que você possa identificar o que cada opção controla.

O Deslocamento da linha de percurso virtual interna determina que uma pessoa que utilize essa escada segurando o corrimão esteja a 0,12m (12 centímetros) de distância do final da escada. Esta distância especifica onde medir a Largura mínima da linha de piso interna.
Já a Largura mínima da linha de calçada interna determina a profundidade mínima do piso em leque, que segundo a NBR 9077 deve ser de pelo menos 0,15m. Essa opção só aparece para escada com método Equilibrado com o valor de 0,072m (7,2cm). Corrija para 15cm.

Concordância de canto permite definir se a “quina interna” da escada terá algum valor de raio. Ao ativar esta opção o campo Raio de concordância é liberado para edição.

Pisos paralelos no início define quantos pisos ficarão retos, isto é, não serão balanceados e Pisos paralelos no final é o mesmo caso, define quantos pisos ficarão retos no final da escada.

Observe que são campos de simples, mas que não devem ser deixados de lado. No meu caso vou fazer algumas alterações, mudando o método de balanceamento para Ponto único, vou deixar um pequeno raio interno de 0,13m e por fim aumentar os pisos paralelos para 5 de cada lado.

Não se esqueça de sempre conferir a profundidade interna dos degraus. Dependendo do ajuste eles podem ficar com valores inferiores a 0,15, ou seja, totalmente forma das normas.

Ah mas e se eu quiser um formato de escada personalizado?
Simples, você pode converter sua escada em Croqui, onde você pode desenhar os degraus da maneira que você preferir. Para isso selecione a escada e na aba Modificar | Escadas clique em Editar escadas.

Em seguida, selecione o lance de degraus e na aba Modificar | Criar escada vá até o painel Ferramentas e clique em Converter.

Será exibido um alerta informando que este processo é irreversível, então pense bem antes de usá-lo.

Em um primeiro momento você não vai notar alterações, porém selecionando o lance de degraus, no campo Ferramentas, a opção Editar croqui está disponível. Clique sobre ela.

Observe que agora temos acesso a aba Modificar | Criar escadas > Efetuar croqui do lance, onde podemos desenhar os limites, espelhos e definir o caminho da escada.

Se não souber trabalhar com essas ferramentas, vou deixar o link de um artigo completo explicando como criar uma escada por croqui.
Acredito que com todos estes recursos agora você será capaz de configurar uma escada com degraus em leque segura e atendendo a todas as orientações das normas de segurança.
CONCLUSÃO
Escadas com degraus em leque são simples de serem criadas, porém e fundamental que você elabore um projeto de escada seguro e que atenda a todas as normas de segurança.
Tem alguma dúvida no processo de criação de escada com degraus em leque ou alguma outra sugestão? Compartilhe sua dúvida, ela pode virar uma publicação exclusiva!
Gostou? Assine nossa Newsletter e seja avisado por e-mail quando saírem novas publicações!
Curtam nossa página! Facebook! E não esqueça de fazer uma avaliação da página!
Participem do nosso grupo! Grupo QualifiCAD
Dúvidas? Comentem!
Apoie o QualifiCAD!
Se este conteúdo foi útil para você, considere apoiar o projeto!
Toda contribuição ajuda a manter o site gratuito, sem anúncios, e a levar mais conhecimento a todos.
Escaneie o QR Code abaixo ou Envie um Pix para apoiar o QualifiCAD!
📲 Siga o QualifiCAD nas redes sociais e acompanhe nossas atualizações:
💬 Deixe seu comentário abaixo e participe da conversa! Sua opinião é importante!!