Linha coincidente (Matchline) no Revit é usada em projetos muito grandes que são divididos em múltiplas folhas. Aprenda agora!
Dependendo do tamanho de um projeto, nem sempre é possível inseri-lo em uma única folha sem ter que reduzir demais a sua escala, situação que pode prejudicar a visualização de informações importantes que ficaram muito pequenas.
Podemos usar como exemplo a planta da estação Júlio Prestes (Fepasa), localizada em São Paulo. Observe que sua impressão teve que ser feita em uma folha com formato especial.

Para dividir um mesmo desenho em várias folhas precisamos indicar onde essa divisão ocorreu, para isso usamos uma linha coincidente (matchline).
O que é uma linha coincidente (matchline)?
Uma linha coincidente ou matchline é uma indicação gráfica utilizada em desenhos técnicos para sinalizar onde uma prancha foi cortada e se conecta a outra quando um projeto precisa ser dividido em várias folhas.
No Brasil não há uma norma que especifique o uso dessas linhas, mas no contexto internacional temos a ISO 128 (Regras gerais para representação em desenho técnico) e padrões como ANSI Y14.1 (Formato de folhas para engenharia).
Segundo a ISO128-20 – Basic conventions for lines, uma linha coincidente deve ser representada por uma linha traço-ponto, com espessura grossa (0,5 a 0,7mm). Além disso, devemos utilizar uma anotação indicando o número da matchline e em que folha o desenho está.

Com uma linha coincidente (matchline) indicando o local exato do “corte” do desenho, podemos inserir as partes do desenho em diferentes folhas.

Linhas coincidentes (matchline) no Revit
Para inserir uma linha coincidente (matchline) no seu projeto do Revit vá até a aba Vista e no painel Composição da folha clique em Linha coincidente.

Ao clicar em Linha coincidente é exibida a aba Modificar | Criar croqui da linha coincidente, onde basta traçar uma linha no local desejado.

Ao finalizar o desenho da linha basta clicar em Concluir.

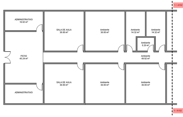
Observe que agora temos uma linha tracejada atravessando o nosso projeto.

Ei! Mas a linha não deveria ser traço-ponto?
Aqui temos uma decisão a tomar. No Revit o padrão é linha tracejada, que na minha opinião reduz o risco de você confundir com uma linha de eixo de projeto, porém se você quiser alterar para traço-ponto, podemos fazer isso sem grandes dificuldades.
Basta você ir até a aba Gerenciar e no painel Configurações clicar em Estilos de objeto.

Na janela Estilos de objeto altere para a aba Objetos de anotação e ao localizar a categoria Linha coincidente temos opções para alterar sua espessura, cor e padrão de linha.

No exemplo que vou passar, vou manter a linha tracejada como está no padrão do Revit. Agora precisamos preparar a vista para que seja possível “dividir” o desenho para que suas partes sejam inseridas em folhas diferentes.
Este processo envolve Duplicar e recortar a vista, assuntos que já foram abordados aqui no site, então vou deixar o link para os artigos completos sobre essas ferramentas.
O primeiro passo é Duplicar a vista como dependente, desta forma as alterações aplicadas em uma vista serão reproduzida na outra, principalmente quando falamos de anotações e escala.
Para isso vá ao Navegador de projeto, localize a vista e com o botão direito selecione Duplicar como dependente.

Repita o processo, assim teremos duas vistas. Observe que as vistas que foram criadas estão conectada a vista principal, ou seja, estão como dependentes.

Vou renomear ambas as vistas, para isso clique com o botão direito sobre a vista e selecione a opção Renomear.

Vou renomear como Nível 1 – A e Nível 1 – B, pois estas são as vistas que vão para as folhas. Abra a vista Nível 1 – A e na Barra de controle de vista (menu inferior) clique em Exibir região de recorte.

Será exibida a região de recorte ao redor do desenho. Observe que temos uma caixa com linha contínua e outra com linha tracejada.

Selecione a caixa de linha contínua e com auxílio das alças (bolinhas azuis) faça um requadramento até exibir apenas a área a esquerda da linha coincidente.

Clique novamente em Exibir região de recorte (que agora é ocultar) para ocultar a caixa de recorte.

Repita o processo na Vista Nível 1 – B, assim teremos as duas vistas devidamente configuradas.

Eu prefiro criar duas vistas como dependentes, pois desta forma eu continuo com uma vista “inteira” para trabalhar e na etapa de inserir as vistas em uma folha eu insiro das vistas dependentes.
Agora vamos criar as folhas para cada uma das vistas, para isso vá até o Navegador de projetos, clique com o botão direito em Folhas (todas) e selecione a opção Nova folha.

Na janela Nova folha selecione uma folha de sua preferência. Vou utilizar a folha A1 métrico.

Agora basta inserir a primeira vista dependente na sua folha. Repita o processo criando outra folha e inserindo a segunda vista dependente. Com isso temos nossas vistas devidamente separadas em duas folhas.

Por fim, podemos inserir a anotação de Referência da vista.
Referência da vista – Linha coincidente
Não basta inserir uma linha coincidente no seu projeto, é indispensável que você insira uma anotação para identificar o número da folha e o número do detalhe. Para isso temos a ferramenta Referência da vista, que está disponível na aba Vista, no painel Composição da folha.

A ferramenta Referência da vista é uma anotação, porém antes de sair inserindo ela na sua vista é importante entender como ela funciona. No meu caso eu tenho uma edificação que foi “dividida” para ser exibida em duas folhas.

A partir do momento em que temos uma Linha coincidente (matchline) a ferramenta Referência da vista identifica em que folhas essas vistas foram inseridas. Observe que na aba Modificar | Referência da vista temos algumas opções.

O campo Tipos de vista identifica as vistas que são afetadas pela linha Coincidente – Plantas de piso, forro, estrutural, elevações, cortes, etc. Já o campo Vista de destino identifica onde “foi parar” o restante do desenho.
Na prática fica mais simples para entender. Vamos começar pela vista Nível 1 – A. Aqui eu preciso indicar onde que eu preciso ir para conferir a vista Nível 1 – B. Desta forma no campo Vista de destino vou selecionar a opção Planta de piso: Nível 1 – B (1/A102).

Vou posicionar a anotação no lado que foi “cortado” para indicar que a outra parte do desenho está em uma folha específica.

Recomendo que insira uma anotação em cada extremidade da linha para deixar claro a função da Linha coincidente (matchline).

Repita o processo na vista Nível 1 – B, porém no campo Vista de destino vou selecionar a opção Planta de piso: Nível 1 – B (1/A101).

Com isso temos a nossa vista devidamente indicada.

Agora temos nosso projeto dividido em duas folhas e corretamente identificado.

Um detalhe interessante é que a anotação Referência da vista é “dinâmica”, isto é, se você clicar duas vezes sobre ela você é direcionado para a vista indicada.

Conclusão
A ferramenta Linha coincidente (Matchline) é um recurso muito eficiente e mesmo que não exista uma norma técnica vigente no Brasil não deixa de ser um recurso muito prático em qualquer projeto!
Tem alguma dúvida sobre a ferramenta Linha coincidente (Matchline) ou alguma outra sugestão? Compartilhe sua dúvida, ela pode virar uma publicação exclusiva!
Gostou? Assine nossa Newsletter e seja avisado por e-mail quando saírem novas publicações!
Curtam nossa página! Facebook! E não esqueça de fazer uma avaliação da página!
Participem do nosso grupo! Grupo QualifiCAD
Dúvidas? Comentem!
Apoie o QualifiCAD!
Se este conteúdo foi útil para você, considere apoiar o projeto!
Toda contribuição ajuda a manter o site gratuito, sem anúncios, e a levar mais conhecimento a todos.
Escaneie o QR Code abaixo ou Envie um Pix para apoiar o QualifiCAD!
📲 Siga o QualifiCAD nas redes sociais e acompanhe nossas atualizações:
💬 Deixe seu comentário abaixo e participe da conversa! Sua opinião é importante!!