A ferramenta nuvem de revisão do Revit não se resume a uma “nuvenzinha” mas sim a um completo sistema de administração e controle de todas alterações do seu projeto. Se você não sabe como usar ou ainda tem dúvidas, aproveite e aprenda agora!
Em qualquer projeto, passamos por etapas de revisão e alteração, de forma que precisamos ter algum tipo de controle do que foi ou ainda precisa ser revisado, principalmente quando trabalhamos em equipe, envolvendo diversos profissionais.
Desta forma é comum recorrermos a clássica nuvem de revisão e, não menos importante, a tabela de revisão(ou tábua de revisão), para descrever o que efetivamente foi alterado no projeto.

Porém o que, para quem vem do AutoCAD, era realizado manualmente, no Revit temos um refinado sistema de Emissões / revisões de folhas.
Um aspecto importante no processo de revisão de projeto no Revit é que primeiro preenchemos as informações da revisão como data, descrição, responsável, etc. e somente depois é que adicionamos as nuvens de revisão ao projeto.
Então vamos entender como essas informações são preenchidas e como podemos personalizar seus respectivos campos.
EMISSÕES / REVISÕES DE FOLHAS
De volta ao seu projeto, agora temos um folha com os campos necessários para exibir as revisões realizadas no projeto, desta forma o próximo passo é inserir as revisões no projeto, para isso devemos ir até a aba Vista e no painel Composição da folha clicar em Emissões / Revisões de folhas.

Clicando no botão será exibida a janela Emissões / Revisões de folhas.

Aqui temos um fluxo de trabalho que, para quem veio do AutoCAD, pode se mostrar bem diferente. Afinal, no AutoCAD colocamos as nuvens de revisão e preenchemos a tabela de revisão manualmente, porém no Revit o processo é todo parametrizado.
Vamos conhecer as configurações que podem ser realizadas em nossas revisões.
CONFIGURANDO EMISSÕES / REVISÕES DE FOLHAS
No Revit temos um controle muito mais refinado, que funciona como um histórico não apenas de alterações mas também de aprovações das revisões. Já nos primeiro campo temos uma importante decisão a ser tomada. As revisões do projeto serão organizadas por projeto ou por folha.

Existem diversos fatores a serem ponderados nesta etapa que vão desde o tamanho do projeto, indo até aos padrões adotados pela empresa. Estou alertando a respeito desta questão porque a partir do momento em que alteramos o padrão de numeração um alerta é exibido.

Este alerta esta relacionado a fazer uma alteração do padrão de numeração quando já temos algumas revisões aplicadas ao projeto. Em um primeiro momento isto pode parecer confuso mas é até bem simples.
Imagine que você tem um projeto com 3 folhas e um total de 9 revisões, onde temos um total de 3 revisões por folha. Caso o projeto seja organizado por projeto, teremos o padrão de numeração que se inicia com 1 e vai até 9.

Caso este mesmo projeto tenha o seu padrão de numeração por folha, teremos um padrão que vai de 1 à 3, se repetindo em cada folha.

Desta forma quando temos um padrão de numeração estabelecido e alteramos ele no meio do processo teremos um “conflito de informações”, de forma que a numeração precisa ser conferida e até mesmo corrigida.
Mas qual o processo correto?
Isso quem vai definir é você e a sua equipe, uma vez que o Revit permite que os dois fluxos sejam utilizados. No exemplo deste artigo, vou utilizar o processo por projeto.
No campo Linha, você pode definir a ordem das alterações. O processo é bem simples, basta selecionar a linha que será movida e utilizar os botões para mover ou mesclar revisões.

Porém alterar a posição da revisão implica em alterar sua numeração, então faça isso com cautela. Um outro campo interessante é o de Personalização da numeração.

Apesar do título “numeração”, você pode optar por uma sequência numérica ou alfabética. Por fim temos o campo Comprimento do arco, que controla o tamanho do “arco da nuvem”.

O valor aqui depende de onde a nuvem será desenhada, pois se a nuvem for desenhada na vista, ela irá aumentar ou diminuir conforme a escala da vista.

Caso a nuvem de revisão seja desenhada na folha, o seu tamanho será fixo.
COMO CRIAR REVISÕES DE PROJETO NO REVIT
Após ajustar as revisões do seu projeto, você pode criar efetivamente as revisões. Observe que temos uma série de campos que podem ser preenchidos.

Apesar da quantidade de campos, você não precisa necessariamente criar uma tabela de revisão com todos eles. É possível criar uma tabela selecionando apenas os campos que forem efetivamente importantes de serem exibidos no seu projeto.
Não sabe como criar uma folha com tabela de revisão? Vou deixar o link de uma publicação que explica o processo em detalhes logo abaixo:
Vamos entender o que é possível fazer com cada um dos campos disponíveis:
- Sequência da revisão – indica a sequência geral de revisões.
- Número da revisão – Valor numérico ou alfabético para indicar a revisão correspondente.
- Numeração – define se o padrão será numérico ou alfabético.
- Data da revisão – Data em que a revisão foi realizada.
- Descrição da revisão – Breve descrição do que a respectiva revisão altera no projeto.
- Emitido – quando emitido, bloqueia a alteração dos dados da revisão.
- Emitido para – Quem será o responsável pela realização da alteração do projeto.
- Emitido por – Quem fez a revisão indicada no projeto.
- Exibir – oferece opções que controlam o que será exibido, onde podemos escolher entre:
- Nenhum – não exibe a revisão.
- Identificador – exibe apenas o identificador da revisão, ocultando a nuvem.
- Nuvem e identificador – exibe o identificador e a nuvem de revisão.
Para adicionar as revisões do seu projeto, basta ir até o campo Adicionar e clicar para que uma nova linha seja exibida.

Os campos são simples e intuitivos, de forma que a etapa de preenchimento das informações de revisão podem ser rapidamente preenchidos e inclusive organizados. Desta forma você pode inserir quantas revisões forem necessárias no seu projeto.
Após incluir todas as revisões necessárias, basta clicar em OK para finalizar, porém você vai observar que nada aconteceu na tabela de revisão do seu projeto.

Isso acontece porque apesar do correto preenchimento das informações de revisão, precisamos indicá-las no projeto, então é nesta etapa que inserimos a nuvem de revisão do projeto.
COMO INSERIR NUVEM DE REVISÃO NO REVIT
A ferramenta nuvem de revisão é um recurso de anotação, portanto esta localizado na aba Anotar, dentro do painel Detalhe.

Quando ativamos a ferramenta nuvem de revisão, somos direcionados para a aba Modificar | Criar croqui da nuvem de revisão, onde temos uma série de ferramentas para criar a nossa nuvem.

Aqui temos duas tarefas. Desenhar um ou mais perímetros fechados com as ferramentas de desenho e identificar qual revisão esta associada a esta nuvem de revisão.
Vamos começar pelo desenho da nuvem. Um detalhe interessante aqui é que não precisamos fazer os “arcos da nuvem” uma vez que ao traçar qualquer tipo de geometria teremos o formato com o aspecto de nuvem.

Você também pode inverter o sentido dos arcos da nuvem, basta pressionar a tecla espaço durante o processo de criação da linha da nuvem.

Se não gostar do tamanho dos arcos da nuvem de revisão, você precisa ir até a aba Vista, painel Composição da folha e clicar em Emissões/Revisões de folha.

Na janela Emissões / Revisões de folhas, vá ao canto inferior direito e localize o campo comprimento do arco.

No campo comprimento do arco você pode alterar para o valor que desejar, sendo que talvez você precise fazer alguns testes. Lembrando que a alteração deste campo afeta todas as nuvens por igual.

Criada a nuvem precisamos associar a revisão que criamos na janela Emissões / Revisões de folhas. Para isso basta ir até a aba de Propriedades e no campo Revisão selecionar uma das revisões que foram criadas para o seu projeto.

Finalizado o desenho da nuvem e a atribuição da respectiva revisão basta finalizar o processo clicando em Concluir.

Se precisar alterar a revisão atribuída a nuvem, não é necessário entrar no modo de edição. Basta selecionar a nuvem e ir até a aba de Propriedades, lá o campo Revisão é exibido novamente.
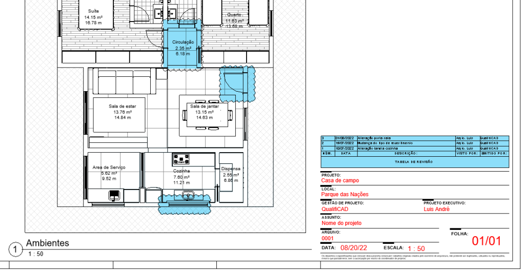
Observe que a partir do momento em que as nuvens de revisão são preenchidas e tem sua respectiva revisão atribuída, a tabela de revisão passa a exibir as informações.

Pode parecer trabalhoso em um primeiro momento, mas o nível de controle das revisões é excelente! Mas ainda temos uma informação para incluir no processo, que é a identificação das nuvens de revisão.
Observe que apesar das nuvens destacarem o desenho não sabemos qual revisão é qual.

Para isso podemos recorrer a um Identificador de nuvem de revisão.
IDENTIFICADOR DE NUVEM DE REVISÃO
Para exibir qual o número do respectivo identificador de revisão, basta ir até a aba Anotar e no painel Identificador clicar em Identificar por categoria.

Agora basta passar o mouse sobre uma nuvem de revisão que imediatamente o identificador (Tag) é exibido. Aí basta escolher a posição onde ele será exibido.

Como as informações são parametrizadas, caso você altere a revisão atribuída para a nuvem, o identificador é imediatamente atualizado.

Você também pode gerenciar as revisões, para isso basta voltar a janela Emissões / Revisões de folhas (Vista > Composição da folha > Emissões/ Revisões de folhas) e marcar o campo Emitido na Revisão, assim você bloqueia a revisão, impedindo novas alterações.

Pronto! Agora você tem um projeto com um refinado controle de alterações e revisões, mantendo as informações do seu projeto muito mais organizadas.
CONCLUSÃO
O sistema de nuvens de revisão do Revit é extremamente simples e muito eficiente, permitindo um completo controle de todas as alterações e revisões do seu projeto.
Tem alguma dúvida no processo trabalho com nuvem de revisão ou alguma outra sugestão? Compartilhe sua dúvida, ela pode virar uma publicação exclusiva!
Gostou? Assine nossa Newsletter e seja avisado por e-mail quando saírem novas publicações!
Curtam nossa página! Facebook! E não esqueça de fazer uma avaliação da página!
Participem do nosso grupo! Grupo QualifiCAD
Dúvidas? Comentem!
Apoie o QualifiCAD!
Se este conteúdo foi útil para você, considere apoiar o projeto!
Toda contribuição ajuda a manter o site gratuito, sem anúncios, e a levar mais conhecimento a todos.
Escaneie o QR Code abaixo ou Envie um Pix para apoiar o QualifiCAD!
📲 Siga o QualifiCAD nas redes sociais e acompanhe nossas atualizações:
💬 Deixe seu comentário abaixo e participe da conversa! Sua opinião é importante!!