Setorização no Revit

Setorização no Revit é uma forma de apresentar os ambientes do seu projeto organizados de acordo com o fluxo ou hierarquia dos espaços, permitindo um rápido e fácil entendimento do seu projeto. Aprenda agora!

O Revit permite que qualquer ambiente do seu projeto seja devidamente identificado, sendo possível exibir informações como seu nome, área, perímetro, número, entre outras possibilidades, facilitando a sua rápida identificação.

setorização-no-revit

Além disso podemos criar uma legenda com um preenchimento de cores, tornando ainda mais rápida a identificação dos ambientes, principalmente em etapas que precisamos apresentar o projeto para um cliente.

setorização-no-revit

Porém em projetos mais robustos a quantidade de ambientes pode exigir uma outra abordagem na apresentação dos espaços, onde a setorização se apresenta como a forma mais eficiente. Mas o que é essa tal de setorização?

SETORIZAÇÃO NA ARQUITETURA

Setorização na arquitetura consiste em organizar um conjunto de espaços e ambientes de forma que sejam coesos entre si, diminuindo a complexidade o otimizando sua melhor integração.

Um mesmo projeto pode ter múltiplos setores, cada um com um conjunto de ambientes, pensados da forma o mais eficiente possível para atender a organização dos fluxos e hierarquia de espaços, tudo conforme o partido arquitetônico do projeto.

setorização-no-revit

O mais interessante é que a partir do momento em que a setorização for definida, resolver os ambientes contidos dentro de cada setor se torna uma tarefa muito mais simples, reduzindo inclusive o número de revisões do projeto.

Para apresentar a setorização do seu projeto dentro do Revit é necessário identificar corretamente estes ambientes.

IDENTIFICANDO AMBIENTES NO REVIT

No Revit um ambiente é uma subdivisão de um espaço com base em elementos como paredes, pisos, telhados e tetos.

É muito importante deixar claro que o ambiente é uma “massa invisível”, que mesmo sendo um elemento tridimensional, só pode ser visualizada em vistas ortogonais, como plantas ou cortes.

setorização-no-revit

Outro detalhe importante é que um ambiente não é aquele “texto”. O texto que costuma ser exibido em um ambiente é um Identificador de ambiente. Para visualizar a diferença basta selecionar o ambiente e conferir na aba Propriedades.

setorização-no-revit

O “texto” na verdade é um identificador de ambientes. Se quiser saber mais sobre identificadores, já fiz várias publicações sobre o tema, vou deixar alguns links logo abaixo:

IDENTIFICADORES (TAGS)

CRIAR FAMÍLIA DE IDENTIFICADOR DE AMBIENTES

IDENTIFICAR AMBIENTES NO REVIT

Entendido o conceito de ambiente, podemos nos concentrar em identificá-lo corretamente, para isso podemos selecionar o ambiente e visualizar o campo Dados de Identidade, na aba Propriedades.

setorização-no-revit

Em Dados de identidade podemos inserir uma série de informações sobre este ambiente, tanto é que as informações exibidas pelo Identificador de ambiente são extraídas deste campo.

setorização-no-revit

Porém esta não é a única informação que podemos inserir em um ambiente. Como podemos ver o campo dados de Identidade oferece uma ampla lista de opções.

setorização-no-revit

Para que seja possível fazer a setorização é importante que além do Nome incluirmos qual o setor que este ambiente pertence, para isso utilizamos o campo Departamento.

setorização-no-revit

Com isso podemos identificar o ambiente tanto pelo nome como pelo seu “departamento” que para nós funcionará como setor. Mas para um melhor entendimento vou utilizar um projeto maior, assim podemos explorar melhor este recurso.

SETORIZAÇÃO NO REVIT

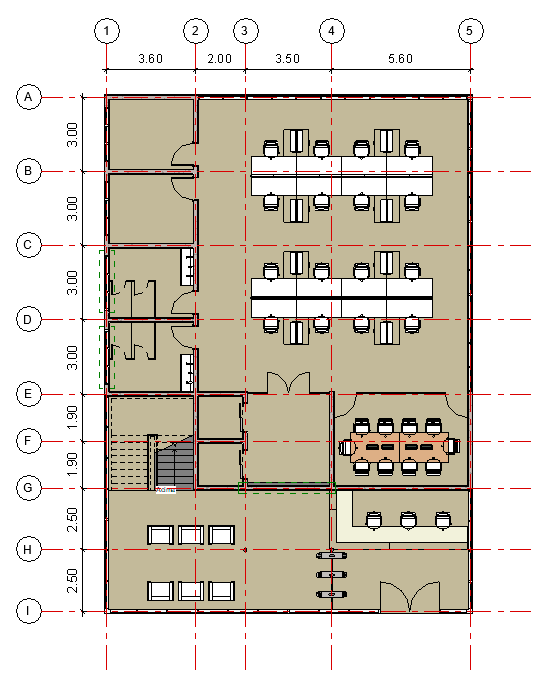
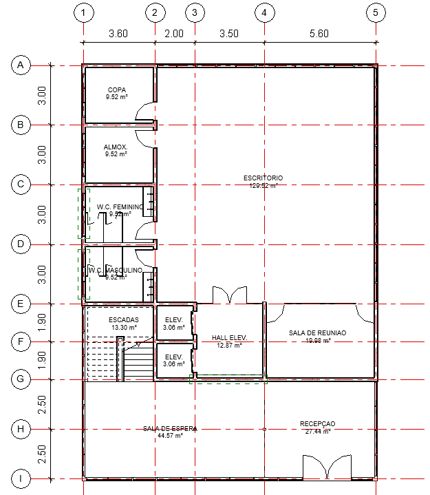
Para apresentar o processo de setorização no Revit vou utilizar uma planta de um prédio comercial, com múltiplos ambientes.

setorização-no-revit

O primeiro passo é identificar cada um dos ambientes. Para isso basta ir até a aba Arquitetura e no painel Ambiente e área utilizar a ferramenta Ambiente.

setorização-no-revit

O processo é bem simples, basta clicar com o mouse dentro de um espaço fechado que um ambiente e um identificador de ambiente é inserido no espaço. Para renomear o ambiente basta clicar duas vezes sobre o título e escrever o nome correto.

setorização-no-revit

Este é o processo padrão para identificar um ambiente, porém, como precisamos que este ambiente seja setorizado, temos uma etapa adicional, que é identificar qual o setor deste ambiente.

Para isso você deve selecionar o ambiente (o “X” grande) e no campo Propriedades preencher o campo Departamento com o respectivo nome do setor que este ambiente pertence.

No meu caso vou identificar o andar do prédio com três setores: AdministrativoCirculação Atendimento. No meu caso o ambiente da copa irá fazer parte do setor Administrativo.

setorização-no-revit

Este processo deve ser repetido para cada um dos ambientes, identificando seu respectivo departamento. O interessante aqui é que o Revit vai “memorizando” os Departamentos que já foram criados, onde você pode simplesmente criar um novo ou selecionar um existente na lista.

setorização-no-revit

Ao finalizar podemos passar para a próxima etapa, que é criar uma Legenda de preenchimento de cor.

SETORIZAÇÃO – LEGENDA DE PREENCHIMENTO DE COR

Agora que tempos uma planta com todos os ambientes identificados e com seus respectivos setores (Departamentos), podemos nos preocupar com a elaboração de uma legenda.

setorização-no-revit

Para isso vá até a aba Anotar e no painel Preenchimento de cores selecione a opção Legenda de preenchimento de cor. Lembrando que de acordo com o tamanho dos eu monitor o painel pode ser exibido de formas diferentes.

setorização-no-revit

Observe que quando você clicar em Legenda de preenchimento de cor o cursor do mouse vai solicitar que você clique em um ponto qualquer. Não se preocupe com a mensagem “Nenhum esquema de cores atribuído para a vista”, ainda vamos configurar isso.

Ao clicar na tela será exibida a janela Escolher tipo de espaço e esquema de cor.

setorização-no-revit

Aqui temos duas perguntas a serem respondidas, qual o tipo e qual o esquema. A resposta é simples, vamos criar uma legenda por tipo de Ambientes e um esquema de Departamento. Em seguida clique em Ok.

setorização-no-revit

Com isso temos uma legenda de cores identificando quais ambientes compõem os setores do nosso projeto.

setorização-no-revit

O mais interessante aqui é que temos diferentes possibilidades de organizar e exibir os ambientes do nosso projeto, onde você pode, a qualquer momento alterar o esquema de cores, ou criar múltiplos esquemas de cores, onde basta duplicar a vista e atribuir o esquema de cores desejado.

setorização-no-revit

Para isso basta selecionar o esquema de cores atribuído e na aba Modificar | Legenda de preenchimento de cores clicar em Editar esquema.

setorização-no-revit

Na janela Editar esquema de cor você pode configurar uma série de informações da sua legenda.

setorização-no-revit

Em Definição do esquema é possível fazer alterações como o Título ou o esquema de cor. Observe que as opções Nome Departamento são apenas alguns dos diversos tipos de esquemas que podem ser adotados.

setorização-no-revit

Pronto! Com isso temos a nossa setorização devidamente configurada!

setorização-no-revit

CONCLUSÃO

Criar uma setorização de ambientes no Revit é um recurso muito simples e prático, permitindo diferentes combinações de apresentação dos espaços do seu projeto.

Tem alguma dúvida sobre como trabalhar com setorização de ambientes ou alguma outra sugestão? Compartilhe sua dúvida, ela pode virar uma publicação exclusiva!

Gostou? Assine nossa Newsletter e seja avisado por e-mail quando saírem novas publicações!

Curtam nossa página! Facebook! E não esqueça de fazer uma avaliação da página!

Participem do nosso grupo! Grupo QualifiCAD

Dúvidas? Comentem!

Apoie o QualifiCAD!

Se este conteúdo foi útil para você, considere apoiar o projeto!
Toda contribuição ajuda a manter o site gratuito, sem anúncios, e a levar mais conhecimento a todos.

Escaneie o QR Code abaixo ou Envie um Pix para apoiar o QualifiCAD!

💚 Apoie o QualifiCAD! 💚
QR Code
Este site existe graças ao apoio de leitores como você!

📲 Siga o QualifiCAD nas redes sociais e acompanhe nossas atualizações:

Ícone do Facebook Ícone do Instagram Ícone do Pinterest Ícone do LinkedIn

QualifiCAD no WhatsApp! Faça parte da comunidade!
WhatsApp Comunidade

💬 Deixe seu comentário abaixo e participe da conversa! Sua opinião é importante!!

Deixe um comentário