Cadeado no Revit é um recurso simples porém extremamente eficiente para a criação de restrições dentro de um projeto. Aprenda agora!
Provavelmente você já viu aquele “iconezinho” de cadeado durante o seu trabalho no Revit. Como é de se imaginar, sua função é a criação de restrições entre elementos do seu projeto.

Apesar de muito eficiente, pode se mostrar uma grande dor de cabeça quando usado incorretamente, pensando nisso vou apresentar as principais aplicações do cadeado no Revit e também como remover uma restrição quando ela estiver atrapalhando!
Mas como eu ativo o cadeado?
A ferramenta cadeado não possui um botão específico para seu uso, mas costuma aparecer em determinados contextos. Vamos conferir eles a seguir.
Cadeado – Alinhamento e restrição geométrica
Dependendo do contexto a opção de criar uma restrição geométrica pode ser sugerida automaticamente pelo Revit, de forma que o cadeado é exibido automaticamente.

Mas e se não aparecer? O que eu faço?
Neste caso o recomendado é utilizar a ferramenta Alinhar, pois ela sempre exibe a possibilidade de ativar uma restrição geométrica entre os elementos alinhados. Para ativar a restrição basta clicar sobre o cadeado.

Ao ativar o cadeado os objetos passam a ter uma restrição geométrica, onde ambos objetos vão permanecer alinhados, mesmo que você mova os objetos. Porém o cadeado “some” logo após ele ser ativado.
Mas como eu vou saber o que tem cadeado e o que não tem?
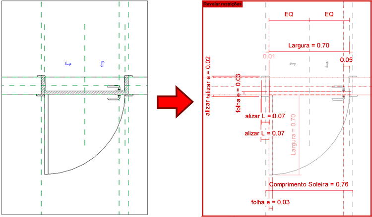
Para visualizar onde existem restrições geométricas no seu projeto, basta ir até a Barra de Status (menu inferior) e clicar no último ícone, o Revelar restrições.

Ao clicar em Revelar restrições, a tela fica com uma borda avermelhada e todas as restrições presentes no seu projeto serão exibidas em vermelho. Com isso também é possível remover uma restrição, para isso basta clicar sobre o cadeado.

Se você tiver vários objetos para serem alinhados, você pode usar o alinhamento múltiplo. Essa opção é exibida na Barra de status, logo após ativar o comando Alinhar.

Marcando este campo basta selecionar “quem manda” e depois clicar nas geometrias que vão “obedecer” um mesmo alinhamento.

O cadeado também pode ser utilizado para manter elementos perpendiculares, como paredes ou mesmo linhas.

Cadeado – Cotas
Sem dúvida uma das principais aplicações do cadeado no Revit são as cotas, pois através delas podemos atribuir restrições geométricas.

Um aspecto importante é que você não deve confundir uma cota com uma restrição dimensional.
Como assim?
A cota é uma “ferramenta” para a criação da restrição, sendo que mesmo que a cota seja deletada, a restrição permanece no local.

Sempre que você utilizar uma cota para criar uma restrição e deletar esta cota o Revit vai exibir uma mensagem, perguntando se você quer remover apenas a cota ou a restrição também.

Isso tudo é muito simples quando você está criando as restrições, porém quanto mais restrições o projeto tiver menos flexibilidade de edição ele vai tendo. Desta forma ao realizar alterações em objetos que tem restrições é comum recebermos um alerta como esse.

Nestes casos, tome cuidado antes de clicar em Remover restrições. Se existe uma restrição há um motivo para ela estar ali. O mais recomendo é entender a função da restrição antes de removê-la.
Além disso o Revit exibe os elementos restringidos na cor laranja, para que você possa identificar quem está restringido e analisar se vale a pena ou não remover a restrição.

É possível usar o cadeado nas dimensões Alinhada, Linear, Angular, Radial, Diâmetro e Comprimento do arco.

Cadeado – Criação de famílias
Toda a etapa de parametrização de uma família emprega o uso de cadeados para a criação das restrições dimensionais, a quantidade de restrições costuma ser tão grande que até assusta quando abrimos o editor de famílias.

Em um primeiro momento pode parecer um exagero, mas pare para pensar, no exemplo acima, uma porta, ao altera um valor como a sua largura, precisamos que o vão da porta seja alterado, as guarnições reposicionadas, a folha (que está aberta) precisa se movida e redimensionada, etc.
Todos esses elementos precisam se comportar de forma precisa, sendo assim o uso de cadeados para a criação das restrições geométricas é indispensável.
Importante! Em uma família, os cadeados devem ser aplicados sempre associando uma geometria ou uma cota a um plano de referência, isso garante o bom funcionamento de uma família.
Não sabe trabalhar com planos de referência? Vou compartilhar um artigo completo sobre o tema:
Cadeado – Dicas
Ao selecionar um objeto com uma restrição geométrica, o cadeado será exibido. Porém, ao clicar com o botão direito sobre o cadeado terá uma opção Exibir relacionado.

Clicando sobre ela o elemento relacionado é exibido em azul e uma janela com a descrição do objeto também é exibida, facilitando muito a sua identificação.

Nas versões mais recentes do Revit, ao ativar o comando Alinhar, temos uma opção Bloquear, onde o cadeado é ativado automaticamente.

Com a opção Bloquear ativada, basta fazer o alinhamento dos objetos sem se preocupar que os cadeados vão sendo ativados.

Quando estiver criando formas geométricas dentro de famílias, sempre tenha planos de referência e ative os cadeados. Como boa parte das formas geométricas tem quatro lados, minha dica é sempre contar os cadeados ao clicar: um, dois, três, quatro.

Pode parecer uma estratégia “boba”, mas a quantidade de restrições geométricas em uma família pode ser gigantesca e até você descobrir qual cadeado você “esqueceu” isso pode consumir um tempo valioso!
Conclusão
Cadeados oferecem pleno controle das geometrias do seu projeto, garantindo a precisão das informações e o bom funcionamento dos parâmetros!
Apoie o QualifiCAD!
Se este conteúdo foi útil para você, considere apoiar o projeto!
Toda contribuição ajuda a manter o site gratuito, sem anúncios, e a levar mais conhecimento a todos.
Escaneie o QR Code abaixo ou Envie um Pix para apoiar o QualifiCAD!
📲 Siga o QualifiCAD nas redes sociais e acompanhe nossas atualizações:
💬 Deixe seu comentário abaixo e participe da conversa! Sua opinião é importante!!