Cotas personalizadas no Revit oferecem um leque de possibilidades na padronização das informações dimensionais do seu projeto. Se você não sabe como corrigir ou customizar as dimensões do seu projeto essa publicação é para você! Aprenda agora!
A configuração das cotas de um projeto costumam ser “deixadas de lado” por muitos profissionais, afinal, porque mexer em algo que está funcionando?
Não que a configuração padrão de estilo de cotas do Revit tenha algum problema grave, mas trabalhar com fonte Arial em cotas de projeto? Ninguém merece…
Deveria ser obrigação de todo profissional dedicar um tempo na customização dos estilos de cotas do seu template, então vamos aprender a criar um estilo de cotas personalizado para o seu projeto!
CRIAR UM NOVO ESTILO DE COTA NO REVIT

Cotas são um recurso de anotação que tem por função adicionar informações de distâncias e dimensões, itens imprescindíveis para a execução de qualquer projeto.
Desta forma é crucial não apenas a clareza das informações, mas também cuidados para que as linhas de dimensões não sejam confundidas com elementos “físicos” do seu projeto, como paredes, piso, etc.
As ferramentas de cotas de projetos já foram apresentadas aqui anteriormente, então se você quiser se familiarizar com suas funções básicas, vou deixar o link dos artigos logo abaixo:
DIMENSÕES NO REVIT – PARTE III
Para acessar as ferramentas de cotas basta ir na aba Anotar, dentro do painel Cota. Observe que temos uma série de opções, mas vou me concentrar na opção Alinhada.

Ao ativar a ferramenta de cota Alinhada, somos direcionados para a aba Modificar | Colocar cotas.

Observe que temos acesso a todos os tipos de cotas disponíveis no Revit, mas no momento, nossa atenção deve se voltar ao painel Propriedades, que exibe uma família chamada Diagonal – 2,5mm Arial.

Se você clicar sobre a família atual, será exibido uma lista com os estilos disponíveis para o seu projeto atual.

Como a proposta é criar uma família personalizada, vamos usar o Diagonal – 2,5mm Arial mesmo. Então basta clicar no botão Editar Tipo, para acessarmos as propriedades de tipo.

Na janela Propriedades de Tipo, temos acesso a todas as configurações da família atual, então recomendo que não faça alterações no estilo padrão, mas que duplique o estilo clicando em Duplicar.

Por se tratar de um exemplo, vou chamar o novo estilo de cota de Personalizada – 2,5mm.

Pronto, agora que temos o nossa família de cota, vamos entender as opções de personalização disponíveis e como elas impactam no nosso estilo de cota.

PARÂMETROS DE COTAS
Em uma família de cotas, os parâmetros são agrupados em cinco categorias: Gráficos, Texto, Unidades primárias, Unidades Alternativas e Outros.

Vamos explorar cada um destes campos e entender o que pode ser personalizado em nossa nova família de cota.
COTAS – PARÂMETROS GRÁFICOS
A maioria dos parâmetros de cotas estão disponíveis dentro do campo Gráficos, que em um primeiro momento pode se mostrar bem intimidador, devido o volume expressivo de opções.

Mas não se preocupe, porque você não precisa personalizar absolutamente tudo, mas mesmo assim é importante entender como cada campo impacta no seu estilo de cota. Para um melhor entendimento, vou colorir e classificar as opções por assunto.

Vamos conhecer o que cada grupo de configurações tem a nos oferecer, mas antes disso, é importante entender a estrutura de uma cota, que de uma maneira geral, nos oferece quatro elementos básicos: a linha de dimensão, a “seta”, a linha de extensão e o valor numérico.

Muitos dos campos que vamos conferir a seguir oferecem ajustes a estes elementos da nossa família de cota.
COTAS EM SEQUÊNCIA
A possiblidade de cotar em série é um recurso muito prático, porém no Revit temos três diferentes modos para este processo, como podemos ver no campo Tipo de sequência de cota.

CONTÍNUO – Todas cotas ficam uma ao lado da outra, alinhadas;

LINHA BASE – Todas as cotas tem como base o ponto inicial, que pode ser invertido. Também é possível ajustar manualmente o espaçamento entre as cotas.

ORDENADA– Exibe a distância de um ponto de origem em relação a vários pontos de referência.

A configuração padrão é a Contínuo, mas as outras opções também são alternativas bem interessantes.
CHAMADA DE DETALHE
Uma situação muito comum é termos que cotar um espaço relativamente estreito, como a espessura de uma parede, que, dependendo da escala, pode ter problemas para exibir o valor número entre as linhas de extensão.

Nestes casos o Revit permite que você selecione o valor numérico da cota e reposicione ele “fora”, de forma que uma linha auxiliar é criada para indicar de onde aquele valor saiu.

As configurações de chamada de detalhe permitem fazer ajustes nesta “linha de chamada”. Aqui temos um problema de tradução, onde “marca de revisão”, deve ser entendido como “cabeça de seta”, que é o tipo de seta utilizado na extremidade da linha chamada de detalhe.

- Tipo de chamada de detalhe – a linha de chamada pode ser um arco ou uma linha.
- Marca de revisão da chamada de detalhe – permite inserir uma seta ou outro símbolo para indicar o ponto exato de onde a linha se inicia.
- Mostrar chamada de detalhe quando o texto mover – permite escolher se a linha de chamada será sempre exibida ou somente quando o valor numérico ficar distante do centro da cota.

Percebemos que são configurações bem específicas, mas nem por isso deixam de ser ajustes importantes. Eu particularmente mantenho a configuração padrão onde ao mover o valor numérico temos um arco para indicar a qual cota o valor pertence.
SETA E PESO GRÁFICO (ESPESSURA DAS LINHAS)
Aqui temos três importantes campos, sendo o primeiro onde escolhemos a “flecha”, também conhecida como seta ou tique arquitetônico, e também podemos definir as espessuras das linhas, tendo grande impacto na visualização das cotas no seu projeto.

- Marca de revisão – permite escolher um tipo de seta para a extremidade das cotas.
- Espessura da linha – controla a espessura das linhas de dimensão e extensão da cota.
- Espessura da linha de marcas de revisão – controla a espessura da “seta” ou tique arquitetônico.
A “Marca de revisão” na verdade é a “flecha” ou seta que fica na extremidade da linha de dimensão, onde temos um amplo leque de opções disponíveis.

Dependendo da escala que você estiver trabalhando, pode ser que as setas pareçam grandes ou pequenas, mas este tamanho é fixo, independente da escala selecionada. Por exemplo, a Diagonal 3mm, terá sempre 3mm de comprimento, em qualquer escala de impressão.
Outro detalhe é que algumas das opções de seta só ficam visíveis quando deixamos a opção Linhas finas desativada. Este campo pode ser desativado no menu de acesso rápido ou na aba Vista, dentro do painel Gráficos.

Esta “graduação” de espessuras de linhas já foi abordada aqui em outra publicação, então se você quiser saber mais a respeito, vou deixar o link logo abaixo:
PESO GRÁFICO E ESPESSURA DE LINHA NO REVIT
Mas se quiser dar uma conferida, você pode ir até a aba Gerenciar, painel Configurações e localizar dentro do botão Configurações adicionais a opção Espessura de linhas.

Aqui você tem acesso a janela Espessuras de linhas, onde na aba Espessura de linhas de anotação é possível conferir a configuração padrão do Revit para cada “graduação” disponível.

Por fim o campo Espessura da linha de marca de revisão permite configurar a espessura da linha da “seta”, que fica posicionada na extremidade da linha de dimensão. Observe que a configuração padrão desta espessura é de 4, que corresponde a 0.35mm.

AJUSTES GERAIS
Os ajustes gerais são campos que afetam, em boa parte, os comprimentos das linhas de extensão e dimensão, oferecendo grande flexibilidade de personalização.

Vamos conhecer o que é possível fazer com cada uma destas opções:
- Extensão da linha de cota – controla qual o comprimento da linha de dimensão para fora da linha de extensão.
- Extensão da linha de cota invertida – só aparece quando utilizamos uma seta. Controla a extensão da linha para fora da seta que ficar invertida.
- Controle da linha de chamada de cota – controla se a linha de extensão fica próxima do objeto ou fixa perto da cota.
- Comprimento da linha de chamada de cota – só é ativado quando a opção acima esta como fixo. Define o comprimento total da linha de extensão.
- Intervalo na linha de chama de cota para elemento – distância da linha de extensão da cota em relação ao objeto cotado.
- Extensão de linha de chamada de cota – distância q a linha de extensão ultrapassa a linha de dimensão.
- Marcar de revisão da linha de chamada de cota – insere uma seta na ponta inferior da linha de extensão.
Lendo cada um dos campos pode soar até meio confuso, mas fiz uma imagem para indicar qual a parte de uma cota estes campos afetam, então sugiro que você olhe a imagem e confira a opção correspondente.

Faça alguns testes, altere alguns campos e vá se familiarizando com as opções.
LINHA DE CENTRO (PADRÃO AMERICANO)
No Brasil temos por habito indicar em planta a largura da janela e a distância da janela para os demais elementos, de forma que o padrão americano de cotagem é um pouco diferente.

No padrão americano cotamos o centro da janela, onde a linha de extensão da cota que sai desse centro, pode ter um padrão de linha diferente, além da possibilidade de se utilizar um diferente padrão de seta e até mesmo algum símbolo gráfico para indicar o centro.

Desta forma temos uma série de opções para definir como será o comportamento gráfico desta linha de centro, onde mesmo não sendo um padrão brasileiro, é interessante conhecer as opções disponíveis.

- Simbolo da linha de centro – quando uma cota pega o centro de uma janela é possível inserir um símbolo como “cl”.
- Padrão da linha de centro – permite alterar tipo de linha de centro.
- Marca de revisão da linha de centro – permite mudar a seta da linha de centro.
- Exibir marca de revisão interna – define se a seta de centro será exibida ou não.
- Marca de revisão interna – quando o de cima esta ativado, permite escolher o tipo de seta.

Estas são opções que raramente fazemos alguma alteração, mas mesmo assim não deixam de ser interessantes.
AJUSTES DIVERSOS
Os últimos campos de ajustes gráficos são recursos simples mas nem por isso deixam de ser importantes, então vamos conhecer cada um desses campos.

O campo Configurações de cota de ordenada só é habilitado quando alteramos o Tipo de sequência de cota, conforme exibido logo no início. Apesar de não parecer útil em um primeiro momento, você consegue criar aquele padrão de cotas internas (cotas de prefeitura) com ele.
Se quiser saber como criar cotas internas, vou deixar um link para a publicação onde explico em detalhes como fazer a configuração.
O campo cor é tão simples quanto se propõe. Você pode escolher a cor padrão das linhas de cota.
Particularmente costumo usar a cor vermelho, uma vez que os elementos de anotação ficam bem destacados no projeto e caso o mesmo seja impresso em preto e branco, a visualização não será prejudicada, uma vez que as linhas ficam em um tom praticamente preto.

Por fim, temos o campo Distância de Snap da linha de cota, que nada mais é do que uma distância “automática” entre as cotas, de forma que quando o Revit detecta que a cota está conforme a distância especificada, um “snap” é ativado, permitindo uma melhor organização das cotas.

O único cuidado aqui é que o valor indicado no campo Distância de snap da linha de cota corresponde ao desenho impresso, isto é, se o valor for 10mm, quando impresso o projeto, o espaçamento entre as cotas será de 10mm.
COTAS – TEXTO
Como você deve ter percebido, o campo texto não se resume apenas a escolher a fonte para a sua cota, de forma que temos uma série de outras opções.

As opções aqui são bem simples, então vou fazer uma breve descrição do que cada campo permite fazer.
- Fator de largura – permite “espremer/esticar” o texto, sendo que a configuração padrão (sem deformação do texto) é o valor 1.0.
- Sublinhado – sublinha o texto da cota.
- Itálico – efeito itálico no texto da cota.
- Negrito – efeito negrito no texto da cota.
- Tamanho do texto – controla o tamanho do texto quando impresso.
- Deslocamento do texto – controla a distância do texto em relação a linha de dimensão.

Observe que a opção Deslocamento do texto, mesmo com valor zero, não encosta na linha. Isso acontece porque o deslocamento é realizado em função da caixa de texto (que só aparece quando está selecionada).
E a seguir, vamos conferir as demais opções:
- Convenção de leitura – permite definir o sentido de leitura do valor numérico.
- Fonte do texto – Você pode escolher qualquer tipo de fonte disponível no seu computador.
- Plano de fundo – permite definir se o texto será exibido com uma “máscara” branca ao fundo, facilitando a visualização em algumas situações.
- Exibir altura da abertura – Em vãos como portas e janelas, o valor de altura é exibido na parte inferior da cota.
- Suprimir espaços – ao adicionar prefixos ou sufixos, este campo permite remover o espaçamento.

Observe que temos aqui mais um pacote de pequenos recursos que podem fazer a diferença quando estamos personalizando um estilo de cota.
COTAS – UNIDADES PRIMÁRIAS
Uma família de cotas utiliza a configuração de unidades padrão do arquivo, porém pode ser necessário fazer algum tipo de personalização.

No campo Formato das unidades, observe que a caixa mostra entre parênteses a palavra (Padrão), porém você pode configurar “exceções”, onde a sua família de cotas deixa de usar a configuração de unidade padrão do arquivo e exibe os valores conforme sua customização.
Clicando no campo Formato das unidades temos acesso a janela Formato, que esta com o campo Usar configurações do projeto ativado. Se quiser personalizar a forma de exibição das unidades para a sua família de cotas, desmarque este campo e faça os ajustes necessários.

No campo Unidades Primárias ainda temos outros dois campos, onde é possível adicionar um sufixo ou prefixo a cota, que vão aparecer em todas as cotas desta família.

Este é um recurso interessante para cotas “especiais”, auxiliando a descrever informações importantes do projeto.
COTAS – UNIDADES ALTERNATIVAS
Dependendo da complexidade do projeto, pode ser necessário utilizar mais de um tipo de unidade, que pode ser habilitado no campo Unidades alternativas.

O melhor exemplo para isso é quando precisamos dos valores de dimensões em metros e também em polegadas. Neste campo podemos configurar o tipo de unidade alternativa e mais alguns detalhes.
No campo Unidades alternativas podemos definir a localização da unidade alternativa, que pode ser a direita ou abaixo.

No campo Formato de unidades alternativas você pode selecionar o tipo de unidade, que pode ser personalizada conforme a sua necessidade.

Também é possível adicionar prefixo e sufixo a unidade alternativa.

COTAS – OUTROS
Apesar do campo se chamar “Outros”, basicamente o que temos aqui são os parâmetros de controle da fórmula de igualdade de cotas.

Possivelmente você já deve ter observado que quando fazemos uma cotagem em série e selecionamentos esta sequencia de cotas, são exibidas duas letras cortadas logo acima da sequência de cotas, no caso EQ.

Este é um recurso muito prático, pois permite que você possa deixar a sequência de cotas equidistante, isto é, o valor de distância das cotas será igual e fixo, desta forma ao fazer alterações em algum dos elementos, os demais são atualizados automaticamente.

Todos os recursos disponíveis aqui foram apresentados em detalhes em outra publicação, que vou deixar o link logo abaixo:
Mesmo assim vou fazer um breve resumo dos parâmetros disponíveis:
- Texto de igualdade – permite definir o texto que será exibido.
- Fórmula de igualdade – permite exibir o cálculo utilizado para a divisão.
- Exibição da chamada da cota de igualdade – controla como a cota será exibida.

PERSONALIZANDO COTAS
A personalização de cotas leva deve levar em conta diversos aspectos, que vão desde normas técnicas, questões funcionais e, não menos importante, aspectos estéticos, afinal uma boa apresentação ainda é muito importante.
Desta forma vou apresentar uma configuração que eu acho interessante e outras mais alinhada ao padrão de normas técnicas, lembrando que isso pode variar muito da necessidade e contexto em que o seu projeto será apresentado.
E o aviso mais importante de todos, FAÇA UM TESTE DE IMPRESSÃO! Não adianta ficar querendo configurar tudo na tela ou em PDF, quando o objetivo é desenvolver um projeto que será impresso.
COTAS ARQUITETÔNICAS

Criar um estilo para as cotas costuma ser um dos maiores desafios para designers de interiores e arquitetos, uma vez que precisamos ter uma perfeita harmonia entre a clareza da informação e a estética do projeto, por mais técnica que a prancha possa ser.
Para a flecha da cota, eu utilizo a opção Diagonal 3mm, já para o texto eu costumo utilizar a fonte StylusBT, pois ela possui caracteres especiais como Ç, acentos e outros símbolos que não são encontrados em outros tipos de fontes.
Um outro pequeno ajuste que faço é a o espaçamento entre o valor numérico e a linha de dimensão. A configuração padrão do Revit deixa um espaço muito grande, eu costumo deixar o valor zerado.
Eu também desabilito a função de plano de fundo, porém isso pode causar problemas em desenhos coloridos, portanto cuidado com esta configuração.
Por fim, cores! Não apenas por estética, mas pelo contraste em relação ao projeto. Eu utilizo o vermelho mas com uma configuração levemente mais escura, no caso RGC 200-000-000, pois caso o projeto seja impresso em preto e branco ele ficará em um tom quase preto, o que não prejudica a leitura.
Segue abaixo o padrão de configuração utilizado na amostra de projeto acima.

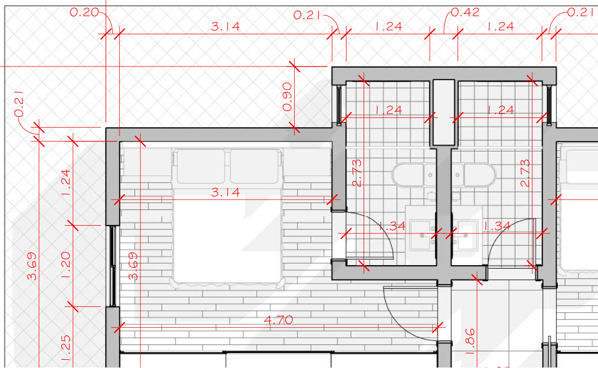
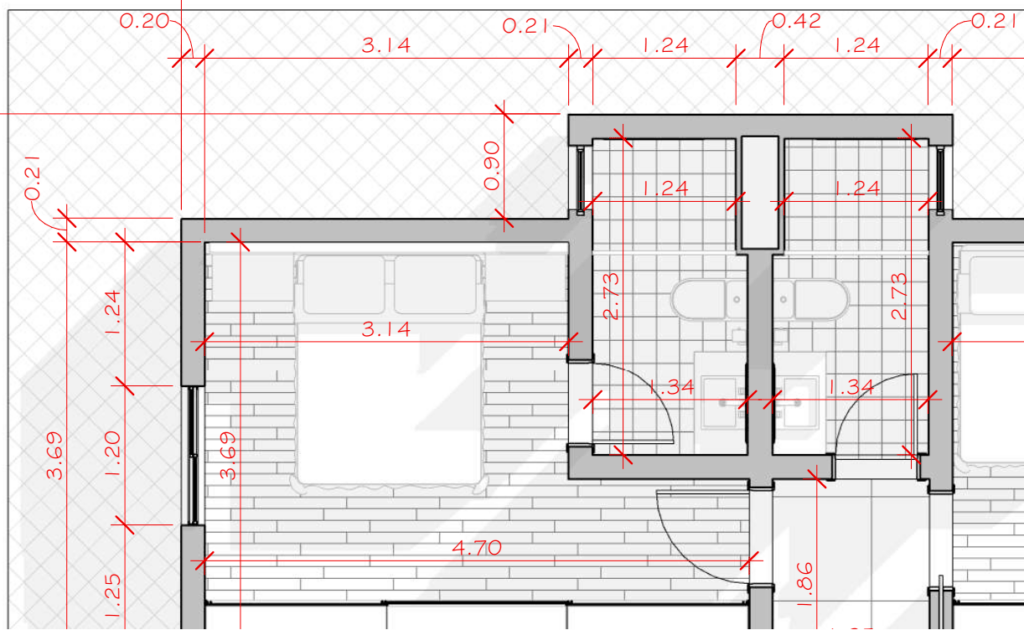
Abaixo uma amostra de um projeto com algumas cotas, onde é possível perceber como a cor das cotas fica mais evidente em relação ao restante do projeto.

Observe que fica claro o que é o projeto e o que são as cotas, não dando margem para algum tipo de confusão entre linhas de cota e a geometria do projeto, permitindo uma fácil leitura e uma boa apresentação das informações do projeto.
COTAS ABNT

Particularmente falando, as informações relacionadas ao padrão de cotas nas normas NBR 6492 Representação de projetos em arquitetura e NBR 10126 Cotagem em desenho técnico são bem rasas no sentido de “construção da cota”.
Temos todo o roteiro para posicionar as cotas no desenho, mas a questão de espaçamento entre valor numérico e linha, intervalo entre a linha de extensão e o objeto, transpasse da linha de extensão e dimensão sequer são mencionados, então temos que fazer isso “no olho”.
Quando preciso de cotas mais “técnicas”, eu costumo usar a Seta preenchida 20 graus, porém não podemos esquecer de zera o campo Extensão da linha de cota, para que a linha de dimensão não fique “para fora” das linhas de extensão.
Já a fonte eu costumo utilizar a Romans, pois ela é a que mais se assemelha a caligrafia técnica, permitindo uma leitura muito clara das informações.
Por fim um pequeno ajuste que faço é em relação ao Tipo de chamada de detalhe, onde seleciono a opção linha e no campo Comprimento do rebaixo coloco uns 2mm, para que a linha faça uma “dobra”, que também é comum de chamar de cotovelo.
Segue abaixo o padrão de configuração utilizado na amostra de projeto acima.

Abaixo uma amostra desta configuração no projeto, que mesmo em preto e branco, podemos identificar facilmente as cotas sem confundir com nenhuma geometria do projeto.

CONCLUSÃO
Cotas personalizadas no Revit deveriam ser um dos primeiros campos a serem configurados, uma vez que representam a informação mais importante de qualquer projeto, as dimensões!
Percebemos que com simples ajustes é possível melhorar a estética e a clareza das informações, proporcionando uma melhor apresentação do seu projeto.
Tem alguma dúvida no processo trabalho com personalização das cotas ou alguma outra sugestão? Compartilhe sua dúvida, ela pode virar uma publicação exclusiva!
Gostou? Assine nossa Newsletter e seja avisado por e-mail quando saírem novas publicações!
Curtam nossa página! Facebook! E não esqueça de fazer uma avaliação da página!
Participem do nosso grupo! Grupo QualifiCAD
Dúvidas? Comentem!
Apoie o QualifiCAD!
Se este conteúdo foi útil para você, considere apoiar o projeto!
Toda contribuição ajuda a manter o site gratuito, sem anúncios, e a levar mais conhecimento a todos.
Escaneie o QR Code abaixo ou Envie um Pix para apoiar o QualifiCAD!
📲 Siga o QualifiCAD nas redes sociais e acompanhe nossas atualizações:
💬 Deixe seu comentário abaixo e participe da conversa! Sua opinião é importante!!