Vista de desenho é um recurso dentro do Revit que cria uma vista “em branco”, onde você pode inserir imagens, arquivos dwg ou mesmo desenhar a informação que você precisa! Aprenda agora!
Em qualquer projeto desenvolvido dentro do Revit você trabalha 100% do tempo com uma simulação 3D, que permite que uma série de representações gráficas da edificação sejam extraídas, como plantas, cortes, elevações, etc.
Mas é muito comum a necessidade de incluir outras informações no projeto, como imagens, detalhamentos, desenhos em dwg, entre outros.
Pensando nisso o Revit oferece a possibilidade da criação de uma vista de desenho, que nada mais é do que uma “vista em branco” onde você pode inserir estas informações adicionais do seu projeto. Vamos conhecer mais sobre essa ferramenta.
VISTA DE DESENHO
A ferramenta vista de desenho (Drawing View) permite a criação de detalhes 2D não associados ao modelo de construção, isto é, você pode inserir arquivos PDF, DWG, arquivos de imagem ou usar as ferramentas de detalhamento 2D para criar seu próprio detalhe.
Em um primeiro momento pode não parecer uma recurso muito importante, mas tenha em mente que modelar detalhes muito pequenos ou mesmo minúsculos dentro do Revit pode sobrecarregar o seu arquivo sem necessidade.
Ao invés disso é possível realizar uma modelagem mais simples e quando for necessário exibir componentes ou mesmo pequenos detalhes recorrer a uma representação 2D, que é muito mais leve e por vezes muito mais eficiente.
Pensando nisso vou apresentar a ferramenta e mostrar algumas formas de utilizar este recurso. Vamos lá!
CRIANDO UMA VISTA DE DESENHO (DRAWING VIEW)
A ferramenta Vista de desenho esta localizada na aba Vista, dentro do Painel Criar.

Será exibida a janela Nova vista de desenho, onde temos algumas informações que podem ser configuradas.

No primeiro campo devemos definir o nome da vista. Lembre-se que este é o nome que será exibido no título do desenho quando o mesmo for inserido na folha de projeto, então escolha um nome apropriado.
No campo escala devemos definir a escala do desenho, que apesar de parecer muito simples, precisamos ter muita atenção aqui, principalmente em função do tipo de informação que esta vista irá exibir.
Vamos do princípio, escala é a relação entre o tamanho real do desenho e o tamanho real do objeto que é representado, desta forma, independente do que for representado nesta vista, o campo escala vai controlar o tamanho que esta informação será exibida.
Por exemplo, se você inserir uma foto de 10 x 10cm, essa imagem só terá essas medidas na escala 1:1 (que é a escala de verdadeira grandeza), caso insira essa mesma imagem de 10 x 10cm e coloque a escala, por exemplo, 1:2, na folha a imagem será exibida com as dimensões de 5 x 5cm, que corresponde a 50% do tamanho.
Mas não se preocupe, a escala pode ser alterada posteriormente, caso necessário.
O campo valor de escala é preenchido automaticamente, sendo a proporção que as informações terão em função da escala definida para a vista.
Clique em Ok para continuar.
Criada a vista de detalhe, o que temos é uma área em branco, literalmente uma folha para desenharmos o que quisermos, onde as informações que forem inseridas aqui não afetam o modelo de construção, isto é, o seu projeto.

Mesmo sendo uma área “desconectada do seu projeto”, observe que no navegador de projetos foi adicionado o campo Vistas de desenho (Detalhe).

Outro detalhe importante é que uma vista de detalhe permite apenas que informações 2D sejam inseridas, tanto é que se você tentar acessar as abas de ferramentas 3D, como a aba Arquitetura, todas as ferramentas de entidades 3D estarão bloqueadas.

Agora que entendemos o que é uma Vista de detalhe vamos entender o que pode ser feito aqui.
VISTA DE DETALHE – FERRAMENTAS DE DESENHO
A princípio, a proposta de uma vista de detalhe é que você realize o desenho 2D diretamente dentro do Revit, para isso temos primeiramente entender quais ferramentas de desenho podem ser utilizadas neste espaço.
Por se tratar de uma área de trabalho 2D, basicamente o que utilizamos aqui são as ferramentas presentas na aba Anotar.

Mas para resumir vou listar os recursos que podemos utilizar dentro deste espaço:
- Linha de detalhe
- Regiões de detalhe
- Componente de detalhe
- Isolamento
- Planos de referência
- Cotas
- Símbolos
- Textos
Acredito que a dúvida mais comum é como começar a desenhar aqui, afinal não vemos logo de cara opções como linhas, círculos, arcos, etc. Para ter acesso a esses recursos você deve ir até o painel Detalhe e clicar na opção Linha de detalhe.

Observe que somos imediatamente direcionados a aba Modificar|Colocar linhas de detalhe onde temos acesso ao painel Desenhar.

A primeira impressão é que são poucas ferramentas, mas não se engane, este painel lembra muito o de ferramentas básicas do AutoCAD, então ele vai permitir fazer qualquer tipo de representação 2D.
Se quiser saber mais sobre a ferramenta Desenhar, veja esta publicação que fiz detalhando cada recurso do painel.
Além das ferramentas de desenho, podemos recorrer as ferramentas de região preenchida e região de máscara.

Para quem esta familiarizado com o AutoCAD, estas ferramentas são similares a ferramenta Hachura, onde temos:
- Região preenchida: cria uma área que pode ser preenchida com uma cor sólida ou utilizar um padrão de preenchimento.
- Região de máscara: cria uma área que permite ocultar parte do desenho.
Para saber mais sobre estes recursos você pode acessar os links abaixo:
Outro possibilidade é trabalhar com as ferramentas Componente de detalhe e Isolamento.

Componentes de detalhe são famílias 2D que podem ser carregadas nas vistas de desenho. Elas funcionam de forma similar aos blocos 2D do AutoCAD, então você pode criar estas famílias previamente e deixá-las salvas em uma pasta.
Se quiser saber mais sobre Componentes de detalhe clique no link abaixo e confira a publicação que fiz sobre este tema:
CRIAR COMPONENTE DE DETALHE – REVIT
Já a ferramenta Isolamento cria uma representação gráfica de um isolamento, muito útil em diversas situações de projeto.

VISTA DE DETALHE – DESENHANDO UM DETALHAMENTO 2D
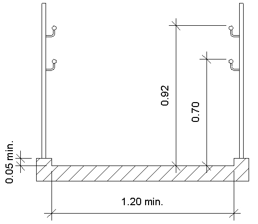
Como exemplo, vou criar um detalhe sobre corrimão e guia de balizamento, presente na NBR 9050.

Para isso vou trabalhar com as ferramentas de Desenho, Região preenchida e Texto.
Vou iniciar pela base, onde vou usar a ferramenta de Região preenchida, que esta localizada na aba Anotar, painel Detalhe.

O primeiro passo é desenhar o perímetro fechado.

Em seguida, vou até a aba Propriedades e seleciono o padrão de preenchimento desejado, neste caso utilizei o Diagonal Ascendente.

Em seguida vou desenhar os corrimãos, com as ferramentas de desenho, disponíveis na aba Anotar, painel Detalhe e clicando no botão Linha de detalhe.

No painel Desenhar temos acesso a todas as ferramentas necessárias para elaborar um desenho 2D.

Em seguida, vou inserir as cotas. As mesmas também estão disponíveis na aba Anotar, painel Cota.

A colocação das cotas é realizada da mesma forma que em um desenho convencional.

Por fim podemos inserir os textos, para isso podemos recorrer a ferramenta Texto, disponível no painel Anotar, aba Texto.

Observe que será exibida a aba Modificar | Colocar texto, que permite configurar como o texto será exibido, inclusive oferecendo a possibilidade de ativar as linhas de chamada de detalhe.

Pronto! Detalhamento finalizado!

Como o desenho foi elaborado na sua escala real (que é o mais recomendado) você pode ajustar a escala da vista conforme a sua necessidade quando for inseri-lo na sua folha de projeto.
Uma outra possibilidade é ao invés de “redesenhar” o detalhe você inseri-lo como uma imagem. Vamos conferir o processo.
VISTA DE DETALHE – INSERINDO UMA IMAGEM COMO DETALHAMENTO 2D
Após criar uma vista de detalhe você pode ao invés de desenhar inserir uma imagem. Para isso vamos até a aba Inserir e localizar o painel Importar.

A Vista de desenho permite a importação de arquivos no formato CAD, PDF e os formatos padrão mais comuns de imagens. Clique na opção Importar imagem e na janela Importar imagem localize o arquivo desejado.

Observe que a imagem será exibida como um “X”. Selecione um local qualquer e clique para inserir.

Aqui temos alguns cuidados importantes relacionados a escala. Se você selecionar a imagem e observar a janela Propriedades, temos os campos largura e altura da imagem.

As medidas expressas neste campo serão interpretadas pelo Revit como as medidas reais da imagem. Desta forma temos duas possibilidades aqui: alterar as medidas ou alterar a escala da imagem.
Particularmente eu recomendo que a vista seja trabalhada na escala 1:1 e os ajustes de tamanho sejam realizados diretamente no campo Propriedades.
Observe também que quando selecionamos a imagem e “esticamos” ela aumenta ou diminui de tamanho, porém mantendo sua proporção. A proporção em que a escala foi alterada é controlada pelos campos Escala horizontal e Escala vertical.
Sobre o peso gráfico, não temos nenhum tipo de controle, uma vez que estamos falando de uma imagem. Desta forma ela será reproduzida exatamente como esta na imagem.
VISTA DE DETALHE – INSERINDO ARQUIVO DWG COMO DETALHAMENTO 2D
Muitas vezes temos detalhes de projeto prontos, porém em DWG, que é o formato nativo do AutoCAD. Estes desenho também podem ser importados e utilizados em uma vista de detalhe.
Para isso, após criar uma vista de detalhe, você deve ir até a aba Inserir e localizar o painel Importar.

O processo de importação de arquivos dwg oferece um maior leque de configurações. Após clicar no botão Importar CAD será exibida a janela Importar formatos de CAD.

Observe que na parte inferior temos uma série de campos que podem ser ajustados. Vou fazer uma breve descrição de cada um deles:
- Cores: define se as cores serão invertidas, preservadas ou alteradas para preto & branco;
- Camadas/Níveis: permite selecionar quais camadas serão importadas;
- Unidade de importação: permite escolher e a escala desejada (evite a opção Autodetectar);
- Posicionamento: define a coordenada em que o desenho será importado.
Vou usar um detalhe genérico de montante de painel cortina, então vou apenas alterar as cores para preto e branco e inserir no desenho.

A opção de usar um arquivo d formato DWG é excelente mas exige cuidados. A primeira coisa é sobre a escala. O ideal é usar detalhes na escala 1:1, pois assim você tem um controle mais fácil da escala que será trabalhada.
Agora quando o desenho não foi elaborado na escala real temos problemas. Por exemplo, ao importar um desenho na escala 1:2, quer dizer que ele esta com 50% do tamanho real.
Se você usar a escala 1:2 no Revit, este desenho será novamente reduzido em 50%, ficando com o equivalente a uma escala de 1:4. Desta forma precisamos ficar “calculando” a escala, o que é bem ruim.
Outro detalhe é o peso gráfico. Por padrão o Revit vai deixar todas as linhas com a espessura 1. Até dá para configurar, mas isso exige um certo trabalho.
CONCLUSÃO
A ferramenta vista de desenho nos oferece uma folha em branco onde podemos colocar qualquer tipo de informação necessária para o nosso projeto, que podem ser desenhadas ou mesmo importadas.
Tem alguma dúvida no processo trabalho com vista de desenho ou alguma outra sugestão? Compartilhe sua dúvida, ela pode virar uma publicação exclusiva!
Gostou? Assine nossa Newsletter e seja avisado por e-mail quando saírem novas publicações!
Curtam nossa página! Facebook! E não esqueça de fazer uma avaliação da página!
Participem do nosso grupo! Grupo QualifiCAD
Dúvidas? Comentem!
Apoie o QualifiCAD!
Se este conteúdo foi útil para você, considere apoiar o projeto!
Toda contribuição ajuda a manter o site gratuito, sem anúncios, e a levar mais conhecimento a todos.
Escaneie o QR Code abaixo ou Envie um Pix para apoiar o QualifiCAD!
📲 Siga o QualifiCAD nas redes sociais e acompanhe nossas atualizações:
💬 Deixe seu comentário abaixo e participe da conversa! Sua opinião é importante!!